Villa By The Park 朗庭園 設計案例 3

單位地址: 朗庭園
居住人數: 3人
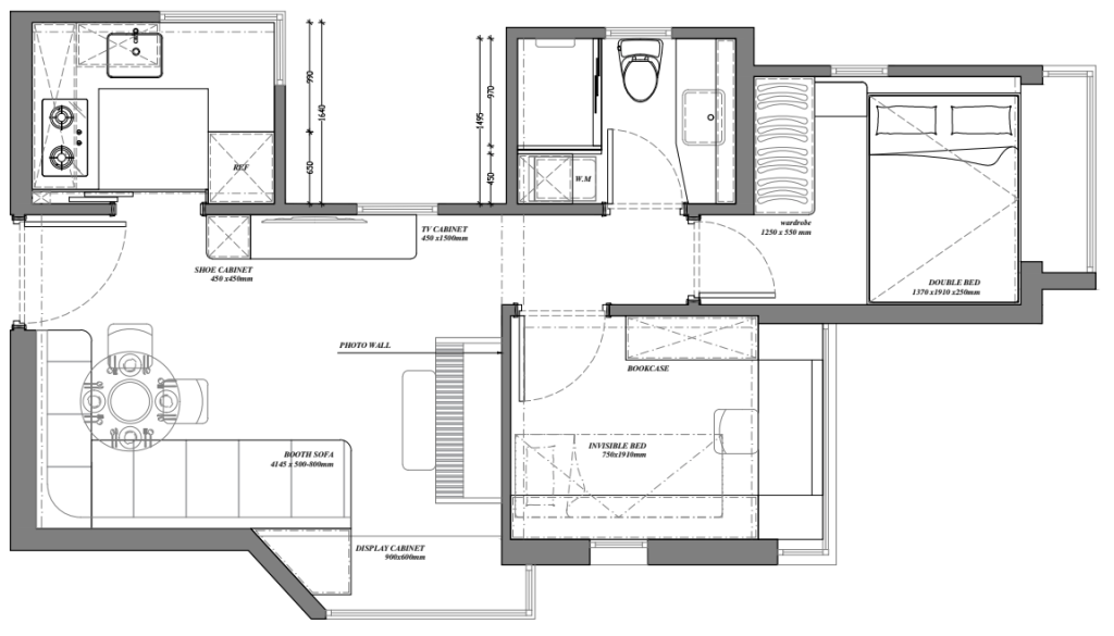
實用面積: 396呎 兩房兩廳
服務包括: 全屋傢俱規劃, 工程連傢俬
傢俬包括: 客廳, 飯廳, 廚房, 浴室, 主人房

LIVING ROOM 客廳設計 - 三房兩廳的空間規劃與室內設計亮點

396呎全屋翻新項目, 除保留原有間隔和收納要求, 設計師用簡約的現代設計重新規劃出舒適家居

主人房

主人房舒適自然, 使用木色配搭白色製作衣櫃, 床底也有大量收納空間

廚房設計

廚房和浴室重新設計, 用雲石磚鋪砌牆身簡潔美觀, 浴室由原來的浴缸改為企缸開揚舒適